Zentrales Reiheneckhaus in bester Lage

Finanz Schuller GmbH
Birkenweg 6, 92542 Dieterskirchen
kontakt@finanz-schuller.de

Zentrales Reiheneckhaus in bester Lage

Eckdaten

  • Art:Reiheneckhaus
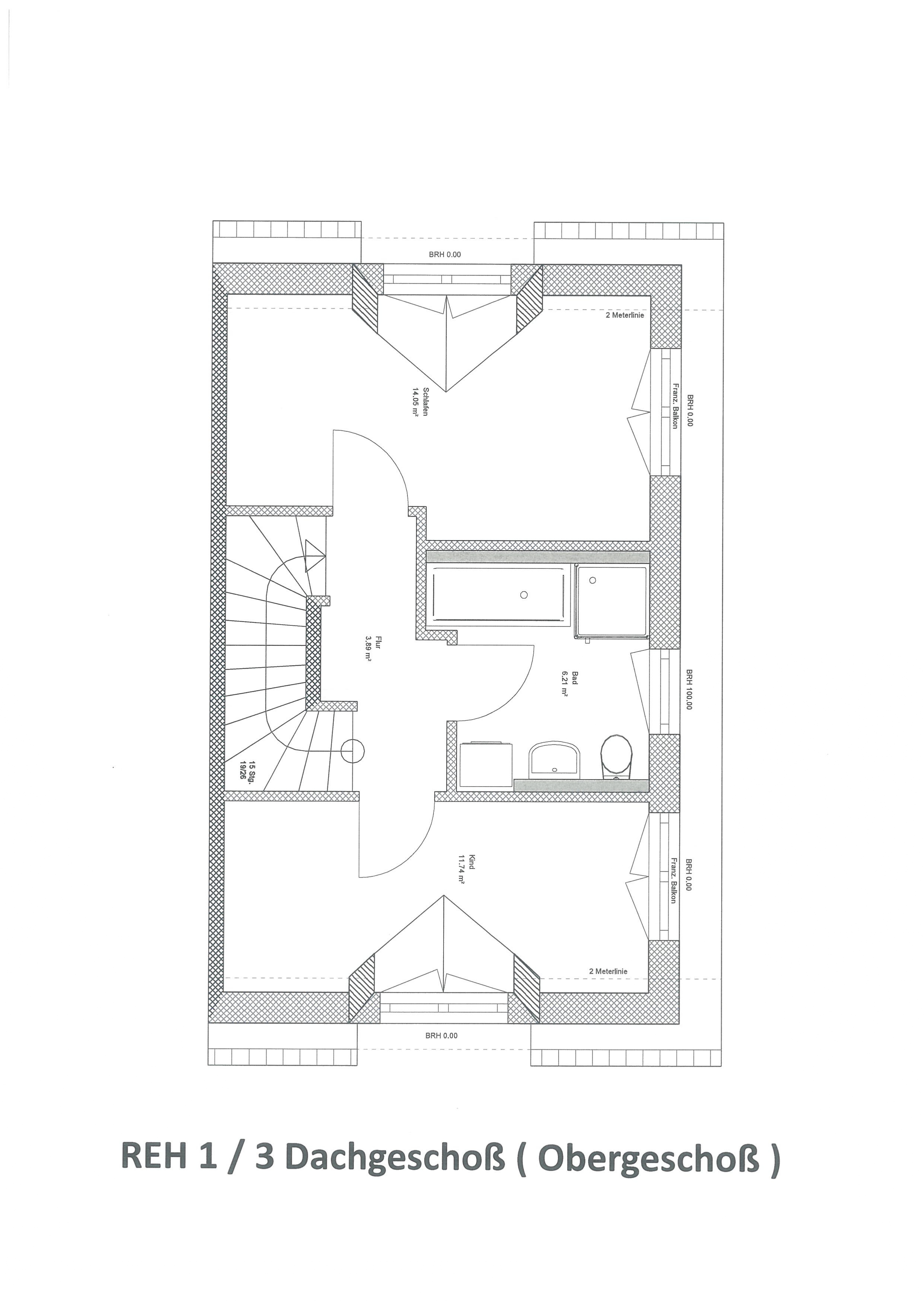
  • Wohnfläche:100 qm
  • Kellerfläche:
  • Alt-/Neubau:1
  • Einbauküche:
  • Stellplatztyp:3
  • Vermietet:
  • Ausstattung des Bades:bathtub
  • Provision:3,57 %
  • Lage:93133 Burglengenfeld
  • Grundstück:236 qm
  • Baujahr:2026
  • Gäste-WC:1
  • Stellplatzanzahl:1
  • Bezugstermin:2027
  • Zustand:01
  • Kaufpreis:469.900 €
  • Zimmer:5
  • Etagenzahl:3
  • Heizungsart:WAE
  • Anzahl Balkone:
  • Garagenanzahl:
  • Bodenbelag:03
  • Immobilien-ID:133608372

Immobilie

Dieses hochwertig geplante Reiheneckhaus entsteht in zentraler Stadtlage und verbindet modernes Wohnen mit effizienter Bauweise. Auf ca. 100 m² Wohnfläche und einem großzügigen Grundstück von ca. 236 m² bietet es mit fünf Zimmern, darunter 3 Schlafzimmer, 1 Büro und ein Studio im Dachgeschoss viel Platz für Familien oder Paare. Die massive Bauweise und ein zeitgemäßer Energiestandard sorgen für nachhaltigen Wohnkomfort. Hochwertige Bodenbeläge aus Fliesen, Parkett und Laminat sowie Fußbodenheizung und eine bedarfsgeführte Lüftungsanlage schaffen ein angenehmes Raumklima.
Die Wärmepumpe und eine Photovoltaikanlage ergänzen das moderne Energiekonzept.

Das Grundstück ist voll erschlossen, inklusive Hausanschlüssen, Erschließungskosten, Zufahrten, Zuwegung, Teilungsmessung sowie Terrasse.

Ausstattungsmerkmale:
- Bodenbeläge als Fliesen, Parkett und Laminat
- Sichtdachstuhl
- Photovoltaikanlage ohne Speicher
- freitragende Holztreppe vom DG ins Studio
- betonierte Treppe mit Fliesenbelag vom EG ins DG
- Fußbodenheizung
- Wärmepumpe
- bedarfsgeführte Lüftungsanlage

Die Umsetzung von Eigenleistung ist möglich!

Gärtnerische Anlagen sowie die Humusierung auf dem eigenem Hausgrundstück, Garage/Stellplatz, Gebäudeeinmessung und Einfriedung sind nicht im Kaufpreis enthalten.

Der Bauträger behält sich die Ausführung in Holzständerbauweise vor.

Lage

Burglengenfeld mit seinen 13.000 Einwohnern liegt an der Naab zwischen Regensburg, Schwandorf und Amberg. Gemeinsam mit Maxhütte-Haidhof und Teublitz bildet die Stadt ein Mittelzentrum, das sogenannte Städtedreieck. Die kurze Entfernung von 5 km zur A93 macht Burglengenfeld zu einem attraktiven Wohnort für Pendler. Die Stadt bietet sämtliche Schularten sowie Betreuungseinrichtungen: Kindergärten, Grund-, Mittel- und Realschulen sowie ein Gymnasium sind in der Stadt vertreten. Der Ort verfügt über mehrere Turnhallen, Sportplätze, das Ganzjahresbad "Bulmare", Tennis- und Squashhalle, Kunstrasenplatz, Rad- und Wanderwege. Für die Freizeitgestaltung ist zusätzlich ein Starmexx Kino, das selbstverwaltete Jugendzentrum, ein DFB-Mini-Spielfeld sowie eine Skaterbahn vorhanden. Vor allem für Familien mit Kindern ist das ein großer Pluspunkt. Lebensmittel- und Bekleidungsgeschäfte sowie Restaurants sind sowohl in der Stadt selbst, als auch in der näheren Umgebung einfach zu erreichen. Für Ihre Gesundheit finden sich zahlreiche Ärzte, Fachärzte und ein Krankenhaus in Reichweite.

Ausstattung

Keller Einliegerwohnung vorhanden Seniorengerecht Barrierefrei Vermietet Gäste-WC Balkon vorhanden Terrasse vorhanden Sauna vorhanden Swimmingpool vorhanden Wintergarten vorhanden Einbauküche Rolladen vorhanden

Sonstiges

Um eine schnelle Bearbeitung gewährleisten zu können, bitten wir um vollständige Kontaktdaten.
(Telefonnummer)

Die Objektdaten beruhen sich auf den Angaben des Verkäufers, für die wir keine Haftung übernehmen.

Homepage:
www.immoschuller.de

Energieausweisangaben

A+
A
B
C
D
E
F
G
H
  • Energiekennwert
  • Energieeffizienzklasse
  • Energieausweis erstellt am
  • Heizungsart WAE
  • Befeuerung / Energieträger

Grundrisse