Baustart in Teublitz vom modernen Neubau Bungalow - Wohnen auf einer Ebene

Finanz Schuller GmbH
Birkenweg 6, 92542 Dieterskirchen
kontakt@finanz-schuller.de

Alexander Schuller

+49 176 84804951

Baustart in Teublitz vom modernen Neubau Bungalow - Wohnen auf einer Ebene

Eckdaten

  • Art:Bungalow
  • Wohnfläche:118 qm
  • Kellerfläche:
  • Alt-/Neubau:1
  • Einbauküche:
  • Stellplatztyp:
  • Vermietet:
  • Ausstattung des Bades:bathtub
  • Provision:3,57 %
  • Lage:93158 Teublitz
  • Grundstück:501 qm
  • Baujahr:2026
  • Gäste-WC:1
  • Stellplatzanzahl:
  • Bezugstermin:August 2026
  • Zustand:01
  • Kaufpreis:635.000 €
  • Zimmer:4
  • Etagenzahl:1
  • Heizungsart:WAE
  • Anzahl Balkone:
  • Garagenanzahl:
  • Bodenbelag:
  • Immobilien-ID:133608428

Immobilie

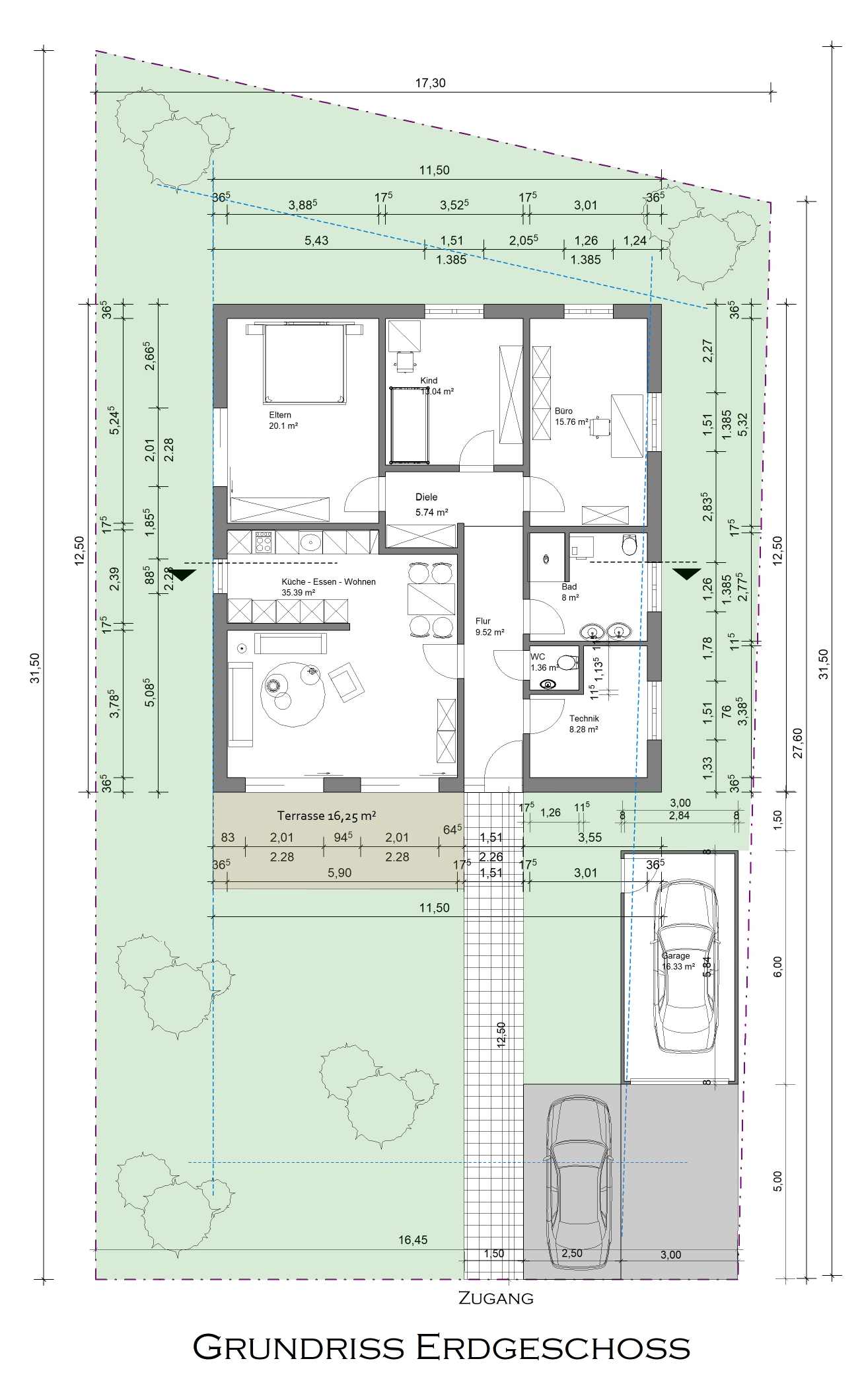
Dieser moderne Bungalow bietet auf einer Ebene ca. 118,34 m² Wohnfläche und überzeugt durch seine hochwertige Bauweise sowie einer sehr guten Raumaufteilung. Im Inneren erwarten Sie ein großzügiger, lichtdurchfluteter Wohn-Ess-Kochbereich, ein Schlafzimmer, ein Kinderzimmer, ein Badezimmer, ein Büro und ein Technikraum. Das zusätzliche Gäste-WC sorgt für weiteren Komfort. Die Ausstattung ist sehr hochwertig und umfasst unter anderem eine Aluminium-Haustüre, anthrazitfarbene Schüco-Fenster, vollgedämmte (elektrische) Aluminiumrollläden, eine dezentrale Lüftungsanlage sowie ein spülrandloses WC und vieles mehr…..

Der Bungalow ist energieeffizient dank moderner Wärmepumpe und Energieeffizienzklasse A+.

Der Preis von 635.000 € setzt sich ohne Bodenbeläge, ohne Terrasse, ohne Außenanlage und ohne Garage oder Stellplatz zusammen. Eine komplette Fertigstellung mit diesen Positionen wäre allerdings möglich. Hier beläuft sich dann der komplett, schlüsselfertige Gesamtpreis auf 740.000 €.

Die Vorbereitung für eine PV-Anlage ist bereits vorhanden und auf Wunsch kann eine komplette ca. 5,5 kW/h PV-Anlage mit Speicher für 18.000 € zusätzlich erworben werden.
Optional besteht auch die Möglichkeit für eine 2. Garage.

Bezugsfertig ist der Bungalow bereits im August 2026.

Lage

Die kleine aber feine Stadt Teublitz liegt im sehr begehrten Städtedreieck im Naabtal und ist nur ein paar Minuten von Burglengenfeld sowie Maxhütte-Haidhof entfernt. Von Teublitz aus benötigen Sie rund 14 km zur großen Kreisstadt Schwandorf und ca. 29 km zur Hauptstadt der Oberpfalz, Regensburg. Teublitz erreichen Sie über die Bundesstraße 15, die nördlich in Richtung Schwandorf und südlich in Richtung Regensburg führt. Ebenfalls erreichen Sie in wenigen Minuten die Autobahn, die nördlich in Richtung Hof und südlich Richtung Regensburg führt. Teublitz ist durch die Buslinie 41 des Regensburger Verkehrsverbunds (RVV) an die Nachbarstädte Burglengenfeld und Maxhütte-Haidhof verbunden. Der nächste Bahnhof liegt in Maxhütte-Haidhof, den Sie durch gute Verkehrsmöglichkeiten in wenigen Minuten erreichen.

Ausstattung

Keller Einliegerwohnung vorhanden Seniorengerecht Barrierefrei Vermietet Gäste-WC Balkon vorhanden Terrasse vorhanden Sauna vorhanden Swimmingpool vorhanden Wintergarten vorhanden Einbauküche Rolladen vorhanden

Sonstiges

Um eine schnelle Bearbeitung gewährleisten zu können, bitten wir um vollständige Kontaktdaten.
(mit Telefonnummer)

Die Objektdaten beruhen sich auf den Angaben des Verkäufers, für die wir keine Haftung übernehmen.

Homepage:
www.immoschuller.de

Energieausweisangaben

A+
A
B
C
D
E
F
G
H
  • Energiekennwert 22,0 KWh(m²*a)
  • Energieeffizienzklasse A+
  • Energieausweis erstellt am 22.11.2025
  • Energieausweis gültig bis 21.11.2035
  • Heizungsart WAE
  • Befeuerung / Energieträger wa

Grundrisse