Schnuckeliges Einfamilienhaus mit Doppelgarage und kleinem Garten in Schwandorf

Schnuckeliges Einfamilienhaus mit Doppelgarage und kleinem Garten in Schwandorf

Eckdaten

  • Art:Einfamilienhaus
  • Wohnfläche:105 qm
  • Einbauküche:Ja
  • Stellplatztyp:Garage, Aussenstellplatz
  • Ausstattung des Bades:Badewanne, Dusche, Fenster
  • Provision:3,57 %
  • Lage:92421 Schwandorf
  • Grundstück:420 qm
  • Baujahr:2021
  • Gäste-WC:Ja
  • Stellplatzanzahl:2
  • Bezugstermin:nach Absprache
  • Zustand:Neuwertig
  • Kaufpreis:515.000 €
  • Zimmer:4
  • Etagenzahl:2
  • Heizungsart:Wärmepumpe
  • Bodenbelag:Fliesen, Vinyl
  • Immobilien-ID:133608426

Immobilie

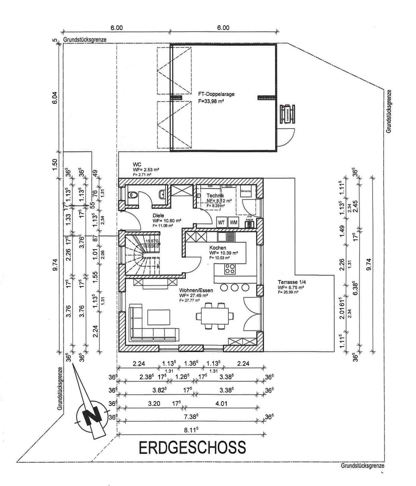
Dieses neuwertige Einfamilienhaus aus dem Baujahr 2021 bietet auf ca. 105 m² Wohnfläche ein modernes und komfortables Zuhause. Der helle Wohn-, Ess- und Küchenbereich bildet das Herzstück des Hauses und schafft eine offene und freundliche Wohnatmosphäre. Von hier aus gelangt man direkt auf die überdachte Süd-Ost-Terrasse mit elektrischer Markise.

Für angenehmen Wohnkomfort sorgt die Fußbodenheizung im gesamten Haus, die über eine moderne Luft-Wärmepumpe betrieben wird. Große, dreifach verglaste Kunststofffenster sorgen für viel Licht in den Räumen. Auch technisch ist das Haus gut ausgestattet. Ein Glasfaseranschluss ist bereits vorhanden und eine Photovoltaikanlage kann problemlos nachgerüstet werden.

Der Garten ist pflegeleicht angelegt und bietet mit Hochbeet, Gerätehaus und einer Regenwasserzisterne praktische Möglichkeiten für die Nutzung im Außenbereich. Eine Doppelgarage sowie zusätzliche Stellplätze stehen ebenfalls zur Verfügung.

Lage

Schwandorf ist eine Große Kreisstadt im Regierungsbezirk Oberpfalz in Bayern. Die Stadt liegt an der Schnittstelle von vier Senken in der Schwandorfer Bucht im südlichen Oberpfälzer Wald. Das Oberpfälzer Seenland grenzt direkt an das Stadtgebiet. Von Nord nach Süd durchquert die Naab das Stadtgebiet. Schwandorf ist hervorragend an das überregionale Schienen- und Straßennetz angebunden. Die Stadt bietet ein abwechslungsreiches Freizeit- und Kulturangebot, familienfreundliches Wohnen und qualifizierte Arbeitsplätze. Schwandorf verfügt über Kinderkrippen, Kindergärten, Grundschulen, eine Mittelschule, zwei Realschulen, ein Gymnasium, eine Staatliche Fach-/Berufsoberschule sowie eine Berufsschule. Die Stadt ist das wichtigste Einzelhandelszentrum im Landkreis Schwandorf. Zahlreiche Handwerksbetriebe bilden einen stabilen Faktor in der Schwandorfer Wirtschaft. Auch der Dienstleistungssektor ist in Schwandorf stark ausgeprägt. Zahlreiche Einkaufsmöglichkeiten, Banken, ein Bahnhof, Ärzte und ein Krankenhaus sind fußläufig erreichbar. Dank der verkehrsgünstigen Lage erreicht man die Autobahnausfahrt nach Regensburg in wenigen Minuten; die Stadt Regensburg selbst ist in etwa 20 Minuten erreichbar.

Ausstattung

Keller Einliegerwohnung vorhanden Seniorengerecht Barrierefrei Vermietet Gäste-WC Balkon vorhanden Terrasse vorhanden Sauna vorhanden Swimmingpool vorhanden Wintergarten vorhanden Einbauküche Rolladen vorhanden

Sonstiges

Um eine schnelle Bearbeitung gewährleisten zu können, bitten wir um vollständige Kontaktdaten.
(Telefonnummer)

Die Objektdaten beruhen sich auf den Angaben des Verkäufers, für die wir keine Haftung übernehmen.

Homepage:
www.immoschuller.de

Energieausweisangaben

A+
A
B
C
D
E
F
G
H
  • Energiekennwert 33,7 KWh(m²*a)
  • Energieeffizienzklasse A+
  • Energieausweis erstellt am 25.08.2021
  • Energieausweis gültig bis 24.08.2031
  • Heizungsart Wärmepumpe
  • Befeuerung / Energieträger Strom

Grundrisse