Gut geschnittener Bungalow mit Doppelcarport in Teublitz

Finanz Schuller GmbH
Birkenweg 6, 92542 Dieterskirchen
kontakt@finanz-schuller.de

Alexander Schuller

+49 176 84804951

Gut geschnittener Bungalow mit Doppelcarport in Teublitz

Eckdaten

  • Art:Bungalow
  • Wohnfläche:105 qm
  • Einbauküche:Ja
  • Stellplatztyp:Carport
  • Ausstattung des Bades:Badewanne, Dusche, Fenster
  • Provision:3,57 %
  • Lage:93158 Teublitz
  • Grundstück:486 qm
  • Baujahr:2021
  • Gäste-WC:Nein
  • Stellplatzanzahl:2
  • Bezugstermin:nach Absprache
  • Zustand:Neuwertig
  • Kaufpreis:650.000 €
  • Zimmer:4
  • Etagenzahl:1
  • Heizungsart:Gas-Heizung
  • Bodenbelag:Fliesen
  • Immobilien-ID:133608444

Immobilie

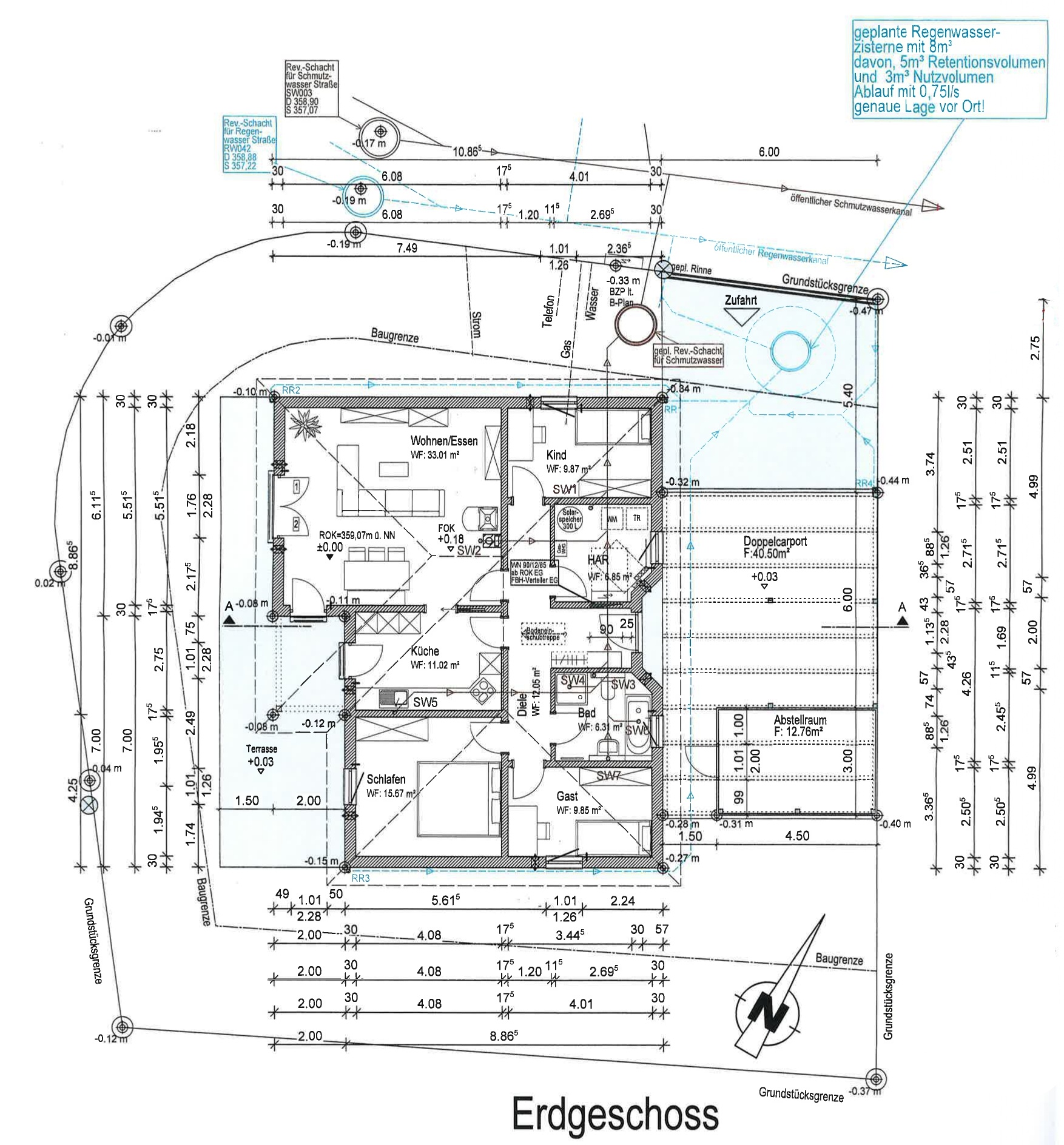
Dieser neuwertige und behindertengerechte Bungalow sucht neue Eigentümer und besticht mit einer Wohnfläche von 104,62 m², die sich auf vier Zimmer verteilen.
Die Immobilie überzeugt mit einem hellen Wohn-/Essbereich mit direktem Zugang zur teilüberdachten Terrasse. Komplettiert wird das Objekt von 2 Schlafzimmern, einer hochwertigen Küche, einem Büro, einem großzügigen Badezimmer mit Badewanne und Dusche sowie einem Hauswirtschaftsraum.
Der Schwedenofen im Wohnzimmer und die Fußbodenheizung im seniorengerechten Objekt sorgen für Wärme.
Die Photovoltaikanlage mit 10 kW Speicher stellt ein besonderes Ausstattungsmerkmal dar und ermöglicht die Nutzung und Speicherung von selbst erzeugtem Strom. Eine Wallbox kann bei Bedarf problemlos installiert werden.
Im Doppelcarport befindet sich zudem eine 6 m³ große Regenwasserzisterne, die eine nachhaltige und kostensparende Bewässerung des Gartens ermöglicht.

Zu den Ausstattungsmerkmalen zählen:

- Solaranlage für Warmwasser
- PV-Anlage mit 10 kW Speicher
- 6 m³ große Regenwasserzisterne
- Hochwertige Einbauküche der Marke Geigl
- Teilüberdachte Terrasse
- Zusätzlicher Schwedenofen
- 3-fach verglaste Fenster
- Anbau/Lagerraum hinter dem Carport
- Klimaanlage im Flur mit 7 kW

Das Objekt befindet sich auf einem 486 m² großen Grundstück und bietet somit einen schönen, nicht zu großen Gartenbereich, der im Sommer zum Entspannen und einem gemütlichen Beisammensein einlädt.
Sie sind neugierig geworden? Dann melden Sie sich bei uns und vereinbaren Sie Ihren persönlichen Besichtigungstermin.

Lage

Die kleine aber feine Stadt Teublitz liegt im sehr begehrten Städtedreieck im Naabtal und ist nur ein paar Minuten von Burglengenfeld sowie Maxhütte-Haidhof entfernt. Von Teublitz aus benötigen Sie rund 14 km zur großen Kreisstadt Schwandorf und ca. 29 km zur Hauptstadt der Oberpfalz, Regensburg. Teublitz erreichen Sie über die Bundesstraße 15, die nördlich in Richtung Schwandorf und südlich in Richtung Regensburg führt. Ebenfalls erreichen Sie in wenigen Minuten die Autobahn, die nördlich in Richtung Hof und südlich Richtung Regensburg führt. Teublitz ist durch die Buslinie 41 des Regensburger Verkehrsverbunds (RVV) an die Nachbarstädte Burglengenfeld und Maxhütte-Haidhof verbunden. Der nächste Bahnhof liegt in Maxhütte-Haidhof, den Sie durch gute Verkehrsmöglichkeiten in wenigen Minuten erreichen. Teublitz verfügt über diverse Geschäfte, Märkte, Apotheken und Arztpraxen. Für die weiterführenden Schulen, sprich Gymnasium und Realschule, müssen die Schulkinder in die Nachbarstadt Burglengenfeld pendeln. Für Ihre Freizeitgestaltung gibt es Freibäder, eine Dreifachsporthalle und wunderschöne Radwege für einen tollen Ausflug rund ums Städtedreieck und die begehrte Oberpfälzer Seenplatte. Der Schlosspark und die Tegelgrube (Naturbadeweiher) sowie der Wild- und Freizeitpark Höllohe befinden sich in unmittelbarer Nähe.

Ausstattung

Keller Einliegerwohnung vorhanden Seniorengerecht Barrierefrei Vermietet Gäste-WC Balkon vorhanden Terrasse vorhanden Sauna vorhanden Swimmingpool vorhanden Wintergarten vorhanden Einbauküche Rolladen vorhanden

Sonstiges

Um eine schnelle Bearbeitung gewährleisten zu können, bitten wir um vollständige Kontaktdaten.
(Telefonnummer)

Die Objektdaten beruhen sich auf die Angaben des Verkäufers, für die wir keine Haftung übernehmen.

Homepage:
www.immoschuller.de

Energieausweisangaben

A+
A
B
C
D
E
F
G
H
  • Energiekennwert 70,9 KWh(m²*a)
  • Energieeffizienzklasse B
  • Energieausweis erstellt am
  • Heizungsart Gas-Heizung
  • Befeuerung / Energieträger Gas

Grundrisse