6 Doppelhausbungalows und 4 Einfamilienhäusern in Burglengenfeld

Ruhige Lage in kleiner Siedlung

Neubaugebiet

In Burglengenfeld entsteht ein attraktives Neubauprojekt:

  • 6 Doppelhaushälftebungalows mit durchdachten Grundrissen und großzügigen Gartenflächen
  • 1 Einfamilienhaus für besonders viel Privatsphäre
  • 3 Kettenhäuser mit harmonischem Wohnambiente und effizienter Raumnutzung

Die hochwertige Bauweise, energieeffiziente Ausstattung und ruhige Lage machen dieses Projekt ideal für Familien und Paare, die modernes Wohnen in zentraler Lage schätzen.

Gerne besprechen wir mit Ihnen alles vor Ort und unterbreiten Ihnen ein unverbindliches Finanzierungsangebot – Alles aus einer Hand!

Haben Sie Interesse? Dann zögern Sie nicht – sichern Sie sich Ihr Haus in hochwertiger Ausstattung und attraktiver Lage!

Lassen Sie sich jetzt vormerken!

Über Burglengenfeld

Burglengenfeld liegt mit seinen 13.000 Einwohnern an der Naab zwischen Regensburg, Schwandorf und Amberg. Gemeinsam mit Maxhütte-Haidhof und Teublitz bildet die Stadt ein Mittelzentrum, das sogenannte Städtedreieck. Die kurze Entfernung von 5 km zur A93 macht Burglengenfeld zu einem attraktiven Wohnort für Pendler. Die Stadt bietet sämtliche Schularten sowie Betreuungseinrichtungen: Kindergärten, Grund-, Mittel- und Realschulen sowie ein Gymnasium sind in der Stadt vertreten.

Der Ort verfügt über mehrere Turnhallen, Sportplätze, das Ganzjahresbad "Bulmare", Tennis- und Squashhalle, Kunstrasenplatz, Rad- und Wanderwege. Für die Freizeitgestaltung ist zusätzlich ein Starmexx Kino, das selbstverwaltete Jugendzentrum, ein DFB-Mini- Spielfeld sowie eine Skaterbahn vorhanden. Vor allem für Familien mit Kindern ist das ein großer Pluspunkt. Lebensmittel- und Bekleidungsgeschäfte sowie Restaurants sind sowohl in der Stadt selbst, als auch in der näheren Umgebung einfach zu erreichen. Für Ihre Gesundheit finden sich zahlreiche Ärzte, Fachärzte und ein Krankenhaus in Reichweite.

Übersicht – Burglengenfeld

Übersicht und Informationen zu den Häusern

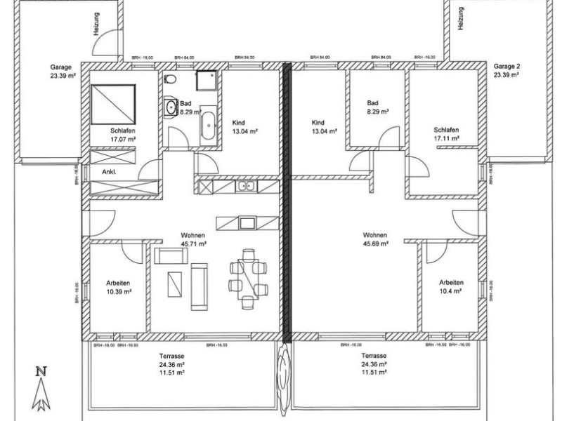
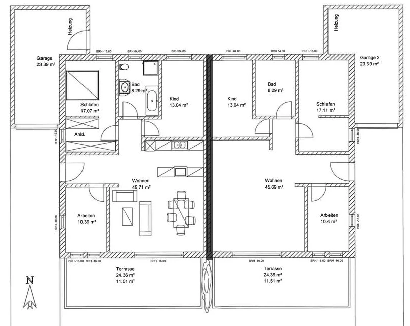
Seniorengerechter Doppelhausbungalow mit einer Garage & Stellplatz sowie kleinem Grundstück (Nr. 1 – 6)
Wohnfläche: ca. 106,13 m²Grundstücksfläche: ca. 250 m²
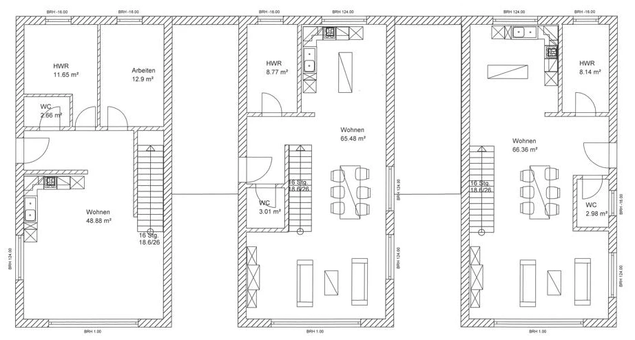
modernes Einfamilienhaus mit Garten und einer Garage & Stellplatz (Nr. 7)
Wohnfläche: ca. 158,78 m²Grundstücksfläche: ca. 350 m²
Einfamilienhaus mit Garage & Stellplatz (Nr. 8 – 10) - Parzelle 8 möglich mit zwei Garagen
Wohnfläche: ca. 158,78 m²Grundstücksfläche: ca. 350 m²